千变万化?!谢菲里住宅
|
非常感谢达人用户 @张果果 提供翻译。 这是由Nextoffice事务所设计的谢菲里住宅,不确定性和灵活性成为了这个项目设计的核心概念。室内空间以及建筑的外立面会根据那可转向的箱体空间而不断变化,或封闭或开敞、或内向或朝外,这些变化会根据季节变化或功能的需求而调整。
像许多其他的城市地块一样,这个项目的地块相对比较扁长。因此,将二维空间带来的设计阻碍利用三维空间来解决的设计思路是不可缺少的。建筑的体量的开放型或封闭性是参考了伊朗传统住宅的形式,根据季节变换模式而更改住宅功能,为户主提供两种不同的季节性居住模式,即Zemestan-Neshin(冬季居所)和Taabestan-Neshin(夏季居所)。
在夏季,谢里菲住宅提供了一个开放、透明、通透的住宅空间,同时带有宽敞的大阳台。相反,在德黑兰寒冷、多雪的冬天,该住宅变得封闭,仅提供极小的开口,并且完全没有了夏季常用的阳台。在这个项目中,对内向型和外向型的建筑形式的探讨与结合,形成了令人兴奋的空间变化,是一个千变万化的住宅建筑。
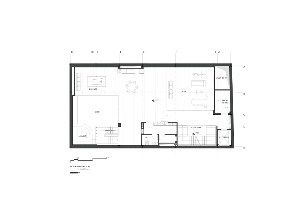
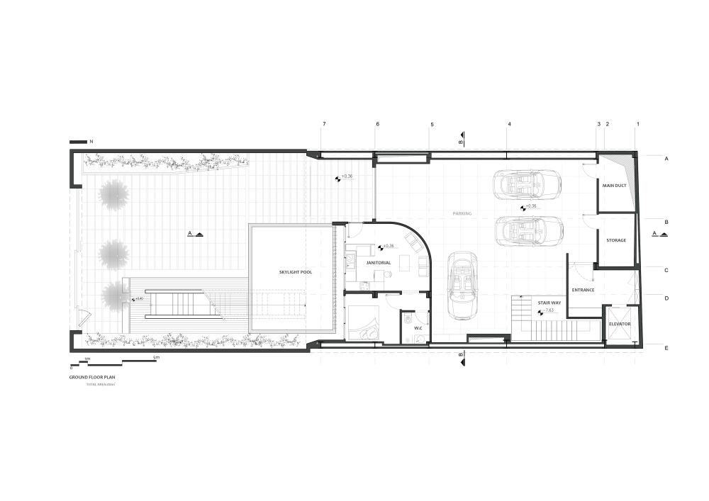
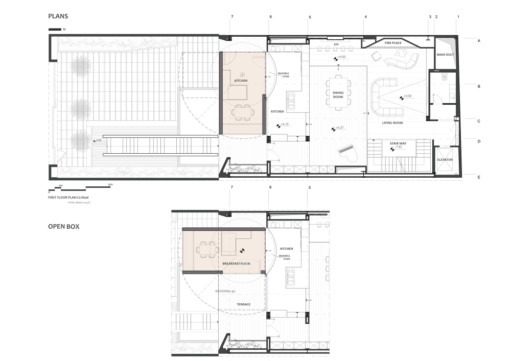
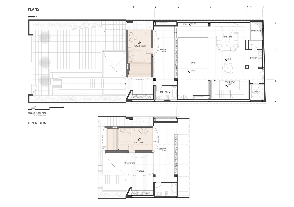
住宅所有功能分布在七个楼层:在两层地下室可以开展家庭聚会活动,布置健身设施和健身区,而首层作为停车场及家政服务区。所有的公共活动区安排在第一层和第二层,相对私密的空间位于三层和四层。
该项目主要包括四个部分,建筑结构、空隙、固定的空间以及可活动的箱体空间。当可以转动的箱体空间闭合时,住宅则通过中庭获取光照,同时在中庭部分有一座桥连接两个固定的空间。
住宅还可以根据户主的功能需求而作出调整。例如,根据是否有客人来访,客房(位于第二层)可以被重新配置用于不同的用途。同样,家庭办公室和餐厅(在一层和三层)可根据户主的需求调整外观。在总而言之,可以根据不同的季节或采光需求而指定调整方案,其中一些方案直接交由该住宅内的电子管理系统实施。
在最初的设计步骤中,建筑师注意到在住宅内可以看到室外的三颗树。现在,在住宅在开放模式下,窗框完美得成为了树木的景框。
在建筑允许的施工边界线约三米外我们引入玻璃喷泉,并为地下室提供明亮的光照。健身和康体区域旁边安置有喷泉的基座,一个镜像雕塑反射的波光粼粼水光,充满了整个空间。
关于扶手和空气流通方法的细节设计成为转动体量设计中主要考虑的问题。可折叠式的扶手设计和对于体量边缘的处理成为了可行的解决方案。
考虑到体量转动后带来的形态上的不同,负载量由系统应当承担的最大负载量计算。同时,控制可能由于体量变化产生振动带来的结构变形也被考虑到建筑的设计问题中。
↑-2层平面图 ↑-1层平面图
↑1层平面图
↑2层平面图
↑3层平面图 ↑4层平面图
↑剖面图
↑剖面图 项目信息建筑事务所:Nextoffice – Alireza Taghaboni 位置:伊朗,德黑兰 ,达鲁 设计师:Alireza Taghaboni 面积:1400.0平方米 年份:2013 摄影:Parham Taghioff, Mandana Mansouri,Salar Motahari, Majid Jahangiri 来源: ArchDaily 翻译:张果果 编辑:建筑学院 |
会员评论












































