建筑时空 首页 建筑作品 室内设计 查看内容

栗东市的小住宅

2016-2-14 23:10| 发布者: 室内设计| 查看: 545| 评论: 0 |来自: 网络

简介:这是一个农村的独立小住宅,建筑师力求创造一个非常舒适的居住空间。 建筑的南侧是一个很大的开放性空间,就像是一个走廊。 纯木的内饰为室内带来带来极其舒适平静的氛围 ...

这是一个农村的独立小住宅,建筑师力求创造一个非常舒适的居住空间。

建筑的南侧是一个很大的开放性空间,就像是一个走廊。

纯木的内饰为室内带来带来极其舒适平静的氛围。此外,屋顶间的开窗为室内提供了全年的光线照射。

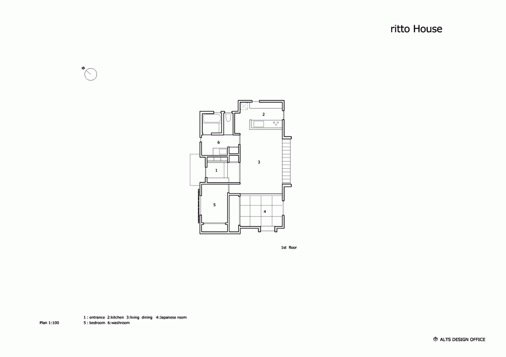
↑平面图

↑立面图

↑剖面图

建筑事务所:ALTS设计事务所

地点:日本,京都

建筑师:Sumiou Mizumoto, Yoshitaka Kuga

面积:71平方米

年份:2014

摄影:ALTS设计事务所

*本文由“建筑学院”译自

archdaily

,仅供学习探讨。*

收藏 邀请

路过

雷人

握手

鲜花

鸡蛋

相关阅读

已有 0 人参与

会员评论

返回顶部