在家中设置滑梯与秋千的家居设计 adds wooden slide and swings to family home in Taiwan by HAO Design
简介:来自台湾的家居设计工作室HAO Design(好室设计)最近为一个四口之家设计了一个可以在室内滑滑梯,荡秋千的房间。是不是听上去很有趣,这样做的目的是让孩子与父母之间可以有更多的时间在一起,而不是父母抱着手机、 ...
|
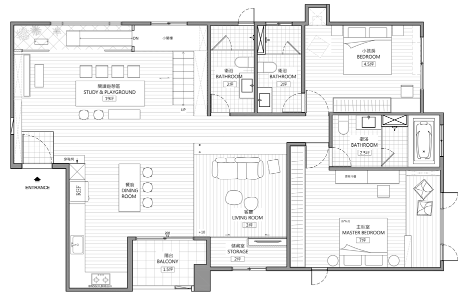
来自台湾的家居设计工作室HAO Design(好室设计)最近为一个四口之家设计了一个可以在室内滑滑梯,荡秋千的房间。是不是听上去很有趣,这样做的目的是让孩子与父母之间可以有更多的时间在一起,而不是父母抱着手机、孩子抱着ipad各玩各的~
“现代的人们将大部分时间花在工作应酬,他们将大部分时间分给了家庭成员以外的人,而与家人共处的时间相对少的可怜”HAO Design(好室设计)的设计师讲到:“我们的业主在装修他们的新居时,最期望的是创造一个开敞的空间,能够让家人更多的时间待在一起。同时要有趣,能够让孩子们置身其中时激发他们行动的灵感”
在这种期望下,设计师实现了一个不太寻常的创意。客厅往往代表着大人的世界,这次它靠边站了,不在占据房子的中心及大部分面积。相反,最大的房间留给了一个叫做“阅读游乐区”,这里有钢琴、格子书架、话题、秋千,一个孩子与父母的小乐园。
|
已有 0 人参与
会员评论


























