生活在工厂 Factory Life by Julie D’Aubioul
简介:建筑师Julie D’Aubioul和其男友都对老旧的工业厂房非常感兴趣。两人于2010年寻到位于比利时瓦尔斯霍特(Waarschoot)附近的一处废弃厂房。这座废弃的建筑在拥有者眼中几乎没有任何价值可言,当时甚至不想让Julie D ...
|
建筑师Julie D’Aubioul和其男友都对老旧的工业厂房非常感兴趣。两人于2010年寻到位于比利时瓦尔斯霍特(Waarschoot)附近的一处废弃厂房。这座废弃的建筑在拥有者眼中几乎没有任何价值可言,当时甚至不想让Julie D’Aubioul看到建筑内部,因为他觉得几乎没有修复的可能。
然而在建筑师眼中却看到截然不同的景象,那些铸铁的支柱与屋顶一排排的高大天窗深深吸引了Julie D’Aubioul和她男友。工厂建于1880年,是当地最古老的纺织厂,曾经有2000名的工人工作生活在这里,然而如今厂区的其他建筑以及不复存在……
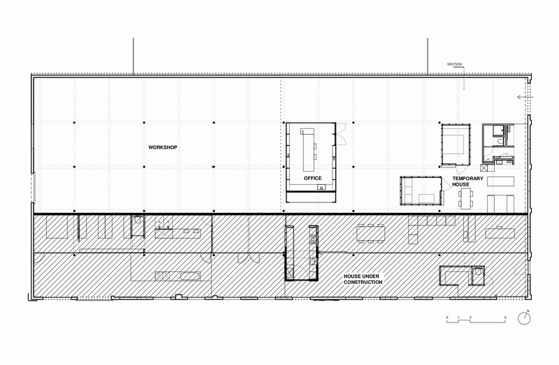
还好,经过Julie D’Aubioul的设计改造,厂房焕然新生。目前厂房分为工作区,临时居住区,办公室和正在建设的真正的生活区。Julie D’Aubioul男友的工作是与摩托车,汽车打交道,所以工作区几乎归他所有,而办公室基本成了Julie D’Aubioul的工作室。临时居所设计得很开场,能够更好的体会工厂loft的自由与随意。
厂房内部成为了他们的小天地,就像生活在只有两个人的“小镇”,“小镇”内有他们的房子,和工作单位。外面下雨,里面聆听雨声,俨然世外桃源~
|
已有 0 人参与
会员评论



























