Glem办公室 by Mareines + Patalano Architects
简介:位于巴西里约热内卢的Glem办公室设计构思来源于其独特的地里位置。项目的用地位于一个用做划船比赛的混凝土框架结构的三角端头。由于前三层是半地下,且屋顶是混凝土的公共座椅,所以不能直接对外开门,且开窗也极为 ...
|
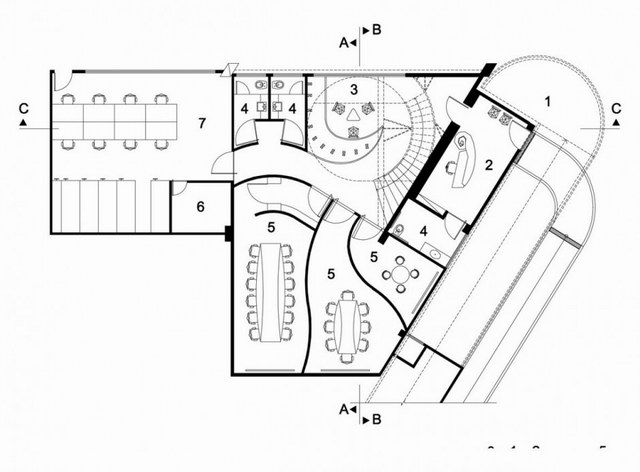
位于巴西里约热内卢的Glem办公室设计构思来源于其独特的地里位置。项目的用地位于一个用做划船比赛的混凝土框架结构的三角端头。由于前三层是半地下,且屋顶是混凝土的公共座椅,所以不能直接对外开门,且开窗也极为受限,只能开在仅有的两个小立面上。其中一个几乎完全被通往看台的一条人行坡道占据,而且由于是一条公共坡道,业主会觉得有被私闯的危险,所以在该立面上就开了一些狭长的条形窗,且为不能开启的透明玻璃,以此为室内引入有限的光线与景观。 本文译者:@圈圈曹
另一立面则俯瞰一组凌乱的现有建筑,这一现状也致使我们设计了一个半圆形的半透明防弹玻璃。在处理好现状矛盾之后,我们决定通过一个弧形混凝土楼梯,桉组合梁及竹网形成的中庭将所有的独立的部分结合起来。一个空空的“菜篮”欢迎着我们的客人的同时也生动了这个精致的封闭的空间。首先它給我们定义了一个接待空间,也可用做非正式的会议室,并将进一步将我们引进到其它的功能空间,三个蜿蜒的会议室,两个卫生间,工作区及技术室。
第一个楼梯通向一个狭窄的通道,该通道直通二楼一个完全独立的由木制推拉门封闭的空间,即Boss办公室。第二个楼梯则通向相对放松的办公空间,有一个小的厨房,还有餐桌,沙发。还有两个更衣室。手工竹网,半透明的通廊玻璃,看似悬浮的不锈钢扶手等等细节都使得整个设计更加轻盈、精致。
|
已有 0 人参与
会员评论






















