迈拉商学院(Myra-School of Business)
简介:项目名称:迈拉商学院(Myra-School of Business) 建筑师:Architecture Paradigm 项目地点:印度 卡纳塔克邦 项目面积:4 180.65㎡(45 000平方英尺) 项目时间:2012年 摄影:Anand Jaju 项目 ...
![]() 项目名称:迈拉商学院(Myra-School of Business) 建筑师:Architecture Paradigm
项目地点:印度 卡纳塔克邦
项目面积:4 180.65㎡(45 000平方英尺)
项目时间:2012年
摄影:Anand Jaju
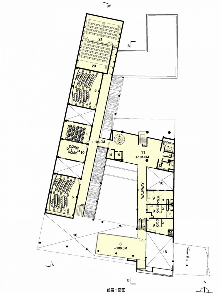
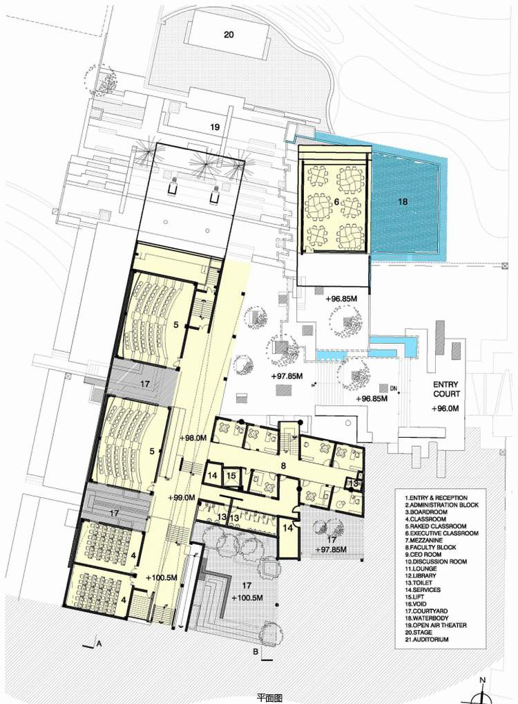
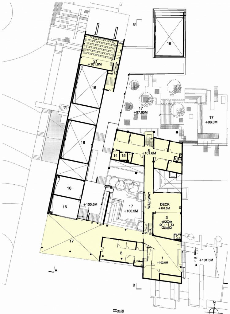
项目沿南侧最高的边缘分布。设计意图是参考倾斜的地形,以一种有结构有组织的方式利用地形。项目被划分为两部分,两者中间形成开放空间。这有助于将项目单元分化成行政区和学生区两部分。行政功能单元位于东部,教室位于西部。经过调整,两部分在西南和东北区域分别形成了空间。员工房间和图书馆被容纳在折叠的空间内。学生休息室位于两者之间,俯瞰学生庭院,赋予了图书馆以独特的个性。部分学生空间被减去,旋转后形成一个形象更加鲜明的学生场地。旋转部分还被看做是行政教室。设计中还引入较小的场地为教室提供采光和自然通风。
对倾斜教室的需求是形式研究的主要动力。在设计过程中,两个房间被合并成一个以创造单一的倾斜研讨空间的可能性,在需要时也可以作为两个教室使用。由此形成了棱角分明的剖面几何形态,仿佛从地景中突出出来,好像高速公路沿线的大圆石。图书馆利用这一点有效地将北部光线引入空间内部。东面和西面被看做是实体表面,降低热渗透深度。坚实的混凝土体块用石膏和涂料渲染,营造整体感。地板材料选用当地的粗糙饰面的花岗岩,个别单元中选用抛光石材或木材。
室内空间轻盈、灵活、自由,与坚固的外观形成对比,有助于智力开发和交流。设计和空间结构试图营造既能激发人们情绪又能释放创造力的环境。
|
已有 0 人参与
会员评论
























