Kavel 01别墅(Villa Kavel 01)
简介:项目名称:Kavel 01别墅(Villa Kavel 01) 建筑师:Studioninedots 项目地点:荷兰 阿姆斯特丹 项目面积:379㎡ 项目时间:2014年 摄影:Peter Cuypers 阿姆斯特丹附近一处小岛的一端坐落着一个 ...
![]() 项目名称:Kavel 01别墅(Villa Kavel 01) 建筑师:Studioninedots
项目地点:荷兰 阿姆斯特丹
项目面积:379㎡
项目时间:2014年
摄影:Peter Cuypers
阿姆斯特丹附近一处小岛的一端坐落着一个神秘的黑色盒体建筑。
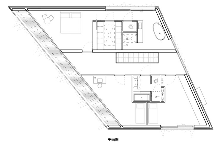
鉴于将一个简单的矩形体量融入棱角分明的地块内不太实际,因此建筑师将别墅设计成菱形。在北侧,体量尽量靠近小岛顶角,以扩展西南立面;这种设计使建筑获得了最多的自然光线和朝向公园风景的视野,突出了室内外空间的联系。立面上的玻璃从西面的角落向内部扩展,强化了首层的开放感;同时创造了被覆盖的平台,不受风吹雨打。最后,公园经过优化布局满足了不同的私人露台和一个独立的停车场空间的需求。
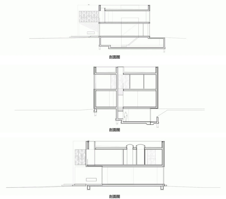
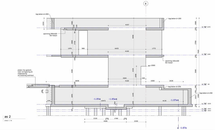
由于高度限制,住宅部分被建于地下。这一“秘密”基地包含了客房、浴室、储藏室、书房和儿童游戏房和影院。地面沿南立面切开缝隙,使太阳光线进入地下室。这一设计彻底改变了体量外观:建筑似乎漂浮在地面之上。一系列楼梯提供了从户外进入该部分的独立路线。
不同于首层起居室的开放设计,一层刻意营造了更加封闭和私人的氛围。三间卧室被掩映在由33片穿孔百叶窗制作的黑色面纱之下。正方形穿孔的结构组合使鲜活的阴影图案投射在楼面和墙壁上,按动按钮,百叶窗就如同口琴一样打开来,然后阳台就神奇地出现了。
尽管Kavel 01别墅的外形受到限制,但建筑本身提供了丰富了空间特色。尖锐的角度和高高的立面使见建筑从不同角度看去呈现不一样的外观,从纤细修长到结实宽阔充满变化。室内空间也如同夜店一样从明亮轻快到黑暗私密,表现出多变的特质。
|
已有 0 人参与
会员评论




























